Serial Blower communication issues can be caused by many things including a bad blower, faulty connection, bad card, or defective cables. Here are the testing procedures that should be followed to help find the issue.
- Review each blower, including both top and bottom, and make sure none of them are dragging or rubbing on anything. With the machine powered down (disconnect off) turn each blower by hand and check if it rubs or drags on anything. Damaged blowers are the number one reason for communication issues.
- Spin each blower by hand, verify that each blower spins freely. Listen for any drag or rubbing noise.
- If any seem harder to spin, have any drag or have any wires or other items rubbing against the blower, replace the blower.
- With the machine powered down (disconnect off) check all power cables to and from the blower circuit breakers and the blower cards. These should be removed and inspected. To inspect the wire, verify the following.
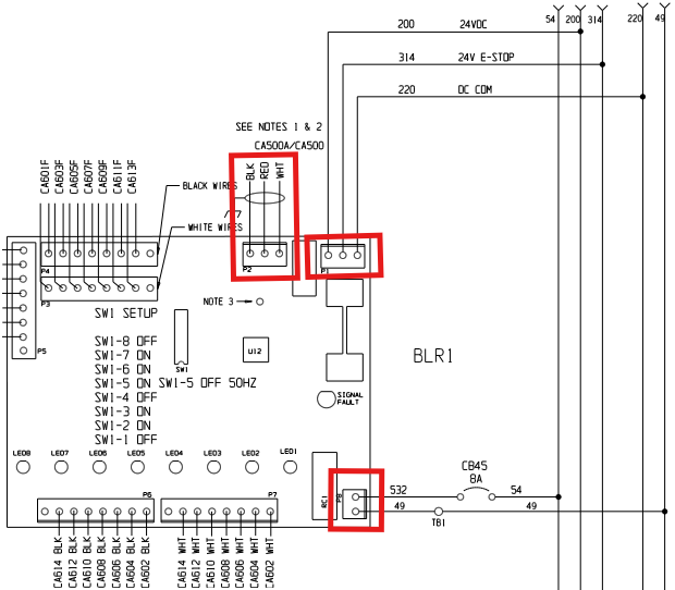
- AC Power (Black & White) are plugged into P8 (Bottom Right Connector).
- Verify that the wire is not burnt.
- Verify that the insulation is back far enough to allow a good connection on the wire, but not too far as to cause a short or allow noise.
- Verify that the strands of wire are not damaged in any way. This damage could be frays, cuts, or burns.
- With the machine powered down (disconnect off) verify the DC power connections.
- DC Power (Brown & Purple wires) are plugged into P1 (Top Right connector above heat sink).
- Verify that the wire is not burnt.
- Verify that the insulation is back far enough to allow a good connection on the wire, but not too far as to cause a short or allow noise.
- Verify that the strands of wire are not damaged in any way. This damage could be frays, cuts, or burns.
- The communication cable from the Main Module to the Blower Card should also be examined. To do this, verify the following with the machine powered down (disconnect off).
- Verify the connections of the (Black, Red & White wires) shown below. They are be plugged into P2 on the Blower Board connection side.
- Check for damage to the cable including cuts, sharp bends, removed or pulled back insulation.

- Verify the connection to the main module by disconnecting the cable, as shown below, and then re-attaching it. Making sure the holding screws are fully tightened down. If there is any question of cable integrity it should be replaced.

- Next review all harness connections from the blower cards to each blower. Make sure to inspect both the blower power and feedback cables for each blower. This is a very important step!
- Inspect for nicks, frays, breaks or any place the insulation may have been cut/rubbing especially against the motor’s rotor, metal shroud or protective cage. We have seen in the past where a wire from the hall effect sensor that provides feedback to the blower card was rubbing against the blower or the metal cage causing a short to ground. If one of these wires shorts to ground it can take out the 5 volts and 3.3 Volts on the board.
- Unplug each blower plug (motor & feedback)
- Inspect each connector (motor side & harness side) for any signs of heat or discoloration.
- Make sure each pin in each connector is securely seated in the plug housing and is not being pushed back when the mating connector is connected.
- Tug each wire slightly to check for loose crimp connections.
- Replace any suspect plug/crimp.
- Verify that all cables are neatly zip tied away from the blower and there is no chance of rubbing or interference with the blower.
- Verify that all motor capacitors are properly mounted, and the mounting nut is tight.

- At the blower board, remove each wire from the blower board plug and re-seat. Then make sure the spring clamp in the plug is on the wire and not the insulation. There are five connectors (three for the feedback and two for the blower power).

- Verify the DIP Switch settings per the schematic.
- Verify all connections are made properly and power on the machine.
- Verify the blower board’s Signal Fault LED flashes on then off when the board is powered up.
- If it does not flash you should remove the P1 connector on the blower control card and verify the 24vdc. If present and the Signal Fault LED does not flash then the control card is probably defective.

- Verify the 5 VDC on the blower board is steady. This can be verified by measuring between the Red and Black Feedback wires on the top left of the blower board. It should read around 5.0 VDC steady with power on. Use a Min/Max meter if available to capture the minimum value.
- Measure 240 VAC on Bottom Right corner connector of board between the Black and White wires.
- Verify communications with the blower boardIn the machine application software, open the blower serial port window, Modules->Blower Serial Port.
- Run each blower one at a time and let run for several minutes while monitoring the 5 VDC on the board.
- Monitor the communications on the Blower Serial Port. The Message Count should be increasing, while the Retry Count & Bad Message Count should remain unchanged.

- Lastly, Communication issues that are consistently seen could be caused by a defective Main Module. If communications errors are seen and all else has failed a new Main Module should be tried.