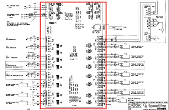
Troubleshooting Aquastorm 200C Signal disorder causes High Temp Alarm
Machine model: AS2C
Alarm information:

Step by step check:
Based on the alarm information, it seems that there is a problem with the signal rather than just an over-temperature alarm.
1:Replace the AIO1 card related to the alarm information. -------Not resolved.

2: Replace the communication channel connected to the AIO card on the Main Board. ------Not resolved.

3: Replace the Main Board. ------ Not resolved.

4: removing all the loads stops the alarms, then reconnect them one by one to see which one triggers the alarm. ------ Solved.

Root cause: Pressure transmitter final rinse lower damage.